Southern California Beach House

Seamlessly integrated indoor and outdoor living spaces create an iconic house that epitomizes the Southern California lifestyle.

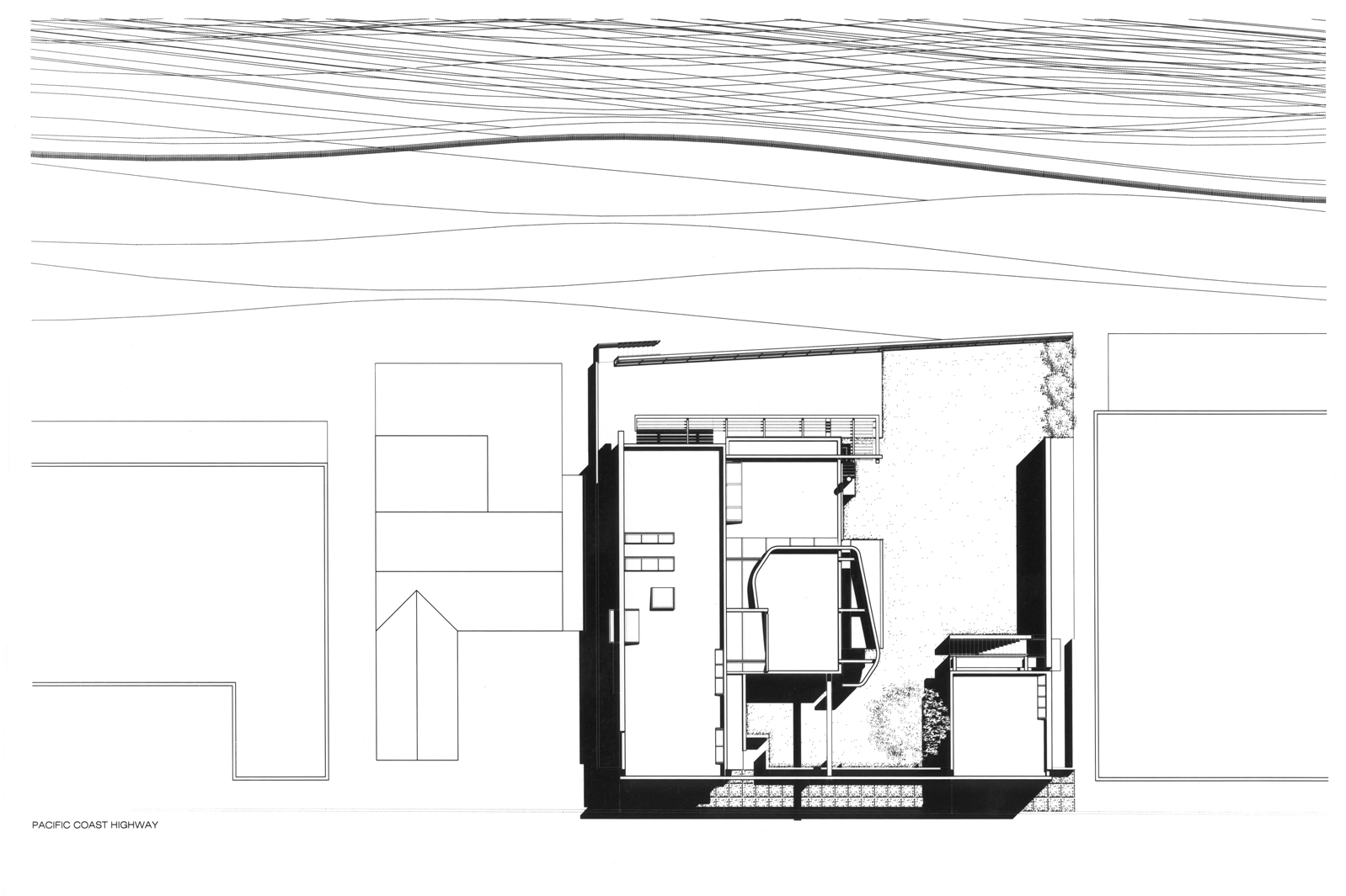
Situated along a densely built section of the Pacific Coast Highway, this house is fronted by the Pacific Ocean to the south and the highway to the north. An open courtyard, inspired by the traditional courtyard buildings of Southern California, creates an exterior living room that stretches along the entire west side of the house and provides a spatial link between the entrance to the property from the highway and the ocean beyond.

The procession through the house begins at the two-story entrance, which provides a framed view through the living room to the Pacific Ocean. This dramatic space is bisected by a glazed walkway at the second level, which connects the private living areas on the east side of the house with the open common spaces and courtyard on the west. Interior and exterior spaces are seamlessly linked to the courtyard and outdoor decks via a full-height wall of glass with integrated sliding doors.  Sunscreens and louvers are integral to the facade, providing passive shading and establishing a transitional space between the house and terrace, further blurring the distinction between inside and out.

The structure of the house is a crucial component of its design. The roof beams, located above the horizontal framing of the facade, establish an expressive rhythm and a sense of layered composition that unify the entire design.