San Jose City Hall

An iconic dome and a sweeping public plaza create a new civic space for the 21st century.

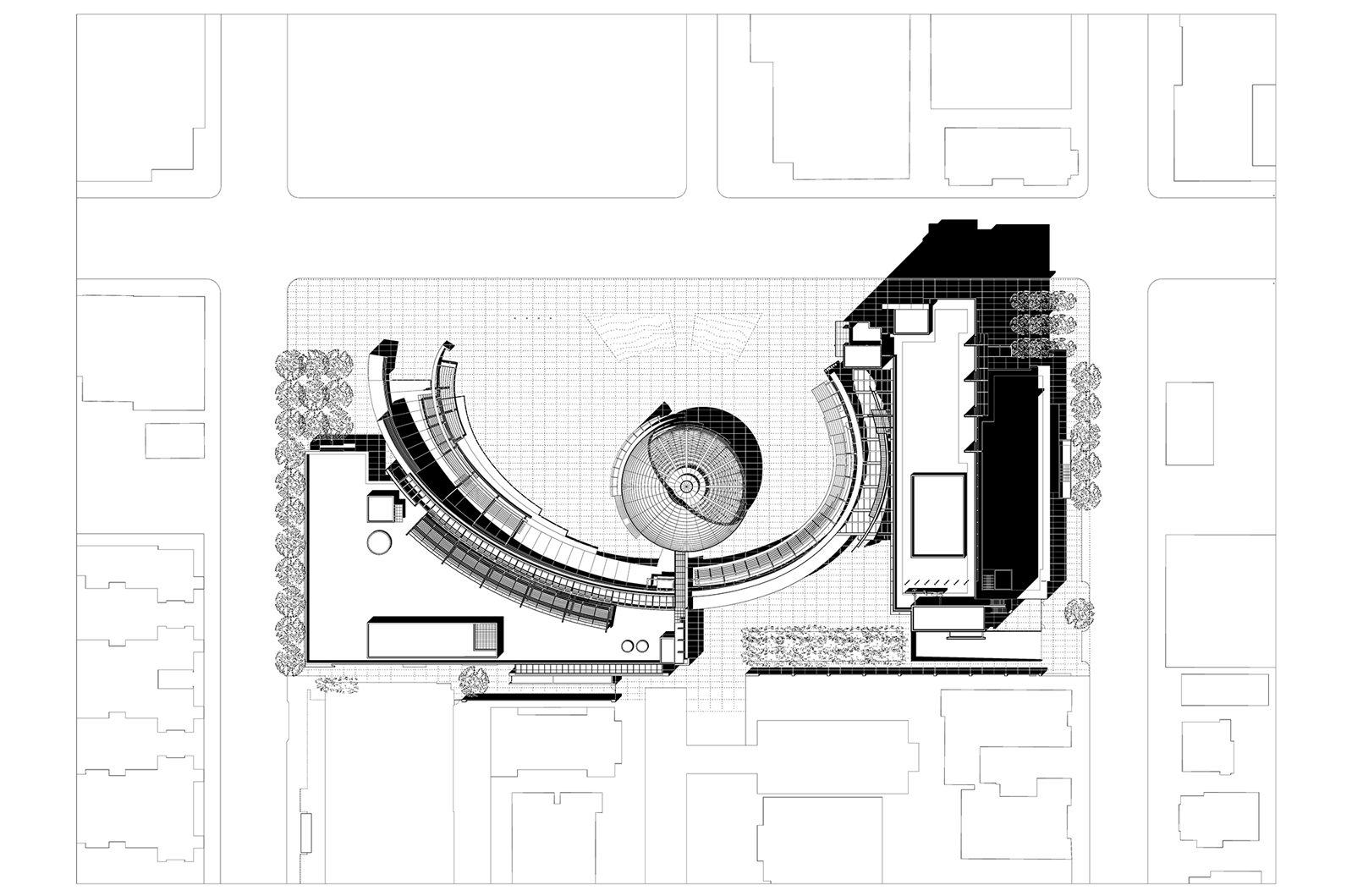
The San Jose City Hall is the centerpiece of a vibrant seven-block redevelopment district. At the heart of the project, an elegantly curved wall defines a generous public plaza, while a striking glass rotunda provides the visual and symbolic focal point of the complex. The city hall building is seamlessly woven into its surroundings using a common design language, which emphasizes inviting public spaces and features such as walkways, plazas, courtyards, and fountains.

The project comprises an eighteen-story office building to house the city departments and a three-story wing housing the city council chambers. Buildings in the surrounding district will include a new performance hall, elementary school, a rebuilt church, and a joint library shared by the city and university. The rotunda, centrally located between the tower and the low-rise wing, anchors the project and establishes a grand public entrance with a monumental staircase leading to the city council chambers.

The transparent dome serves as a visible symbol of the city government as well as the main point of entry to the project. While reminiscent of the iconic domes of important public buildings, the glass rotunda translates this traditional typology into contemporary form and materials.