Malibu Beach House

A house and guesthouse artfully composed and crafted to transform an exceptional oceanfront property into a harmonious, totally designed experience.

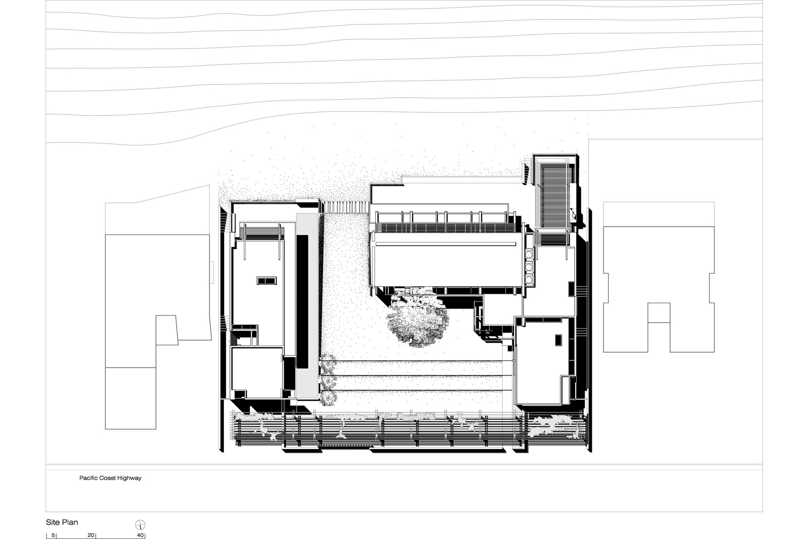
The Malibu site for this house and guesthouse is exceptional in its size and in the amount of ocean frontage it enjoys, both extremely unusual on this south-facing beach. The massing of both buildings has been organized according to a figure-ground diagram that maximizes the potential of these precious commodities.

By splitting the house and guesthouse programs into separate structures, the design allows the sand and grasses to migrate from the beach into an entry courtyard, which thereby acts as an extension of the landscape. Both of the structures have views to the courtyard and the ocean beyond that are filtered and framed by a layer of operable shutters that are independent of the building enclosure.

The materials used throughout the project have been selected in thoughtful response to the oceanfront site. Both the main house and the guest house are clad in teak, and the same material extends to the floors and ceilings inside. A cast-in-place concrete wall bisects the plan, proving a physical link between the entry gate at street elevation to the ocean gate and stairs leading down to the beach, while finish hardware is meticulously detailed in bronze. This palate of materials—teak, concrete, and bronze—is designed to weather and patina in response to the oceanfront environment.