Kojaian Apartment

Panoramic river views and a curated art collection create a peaceful refuge in the heart of Greenwich Village.

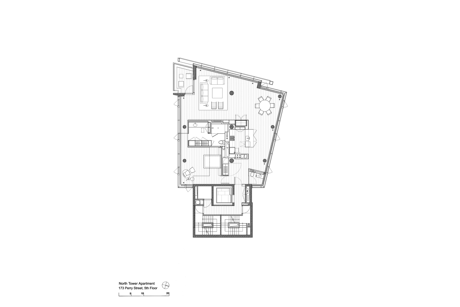
Located in 173 Perry Street, one of the two Greenwich Village towers that marked Meier Partners’ first ground-up construction in Manhattan, this apartment is a holistic realization of the studio’s aesthetic. It was conceived as a harmonious, totally designed space, in which everything from the floor plan to the individual furniture pieces have been carefully coordinated to achieve a whole that is greater than the sum of its parts.

The transparent, minimal forms of the Perry Street Condominiums established them as a striking addition to the New York City skyline, and Meier Partners the interiors of the Kojaian apartment as a continuation of this iconic aesthetic.  Dark floors of Bubinga wood contrast with white walls and complement the modern furniture throughout the residence. The spare design and clean lines of the space require little maintenance while emphasizing incredible natural light and river views, giving the occupant the feeling of floating on the sparkling water of the nearby Hudson river.

In addition to selecting the furnishings, Meier Partners curated a collection of artworks specifically selected to complement and enhance the space. These museum-quality works include a wall sculpture by Frank Stella a drawing by Richard Serra.