JEI Commercial Building

A new prototype for high-end food and beverage spaces uses an urban garden to create an oasis in the heart of a metropolis.

The form of this modestly scaled mixed-use building follows the shape of its site. An almost platonic cubic volume is incised into the site, with its interior spaces organized around a central atrium, filled with soft natural light from above. The building has been designed to maximize flexibility, and the commercial spaces can be sub-divided or reconfigured as desired. A series of unique spaces, one at each corner of the building, has been designed especially with high-end food and beverage offerings in mind, featuring abundant natural light and views to the outside.

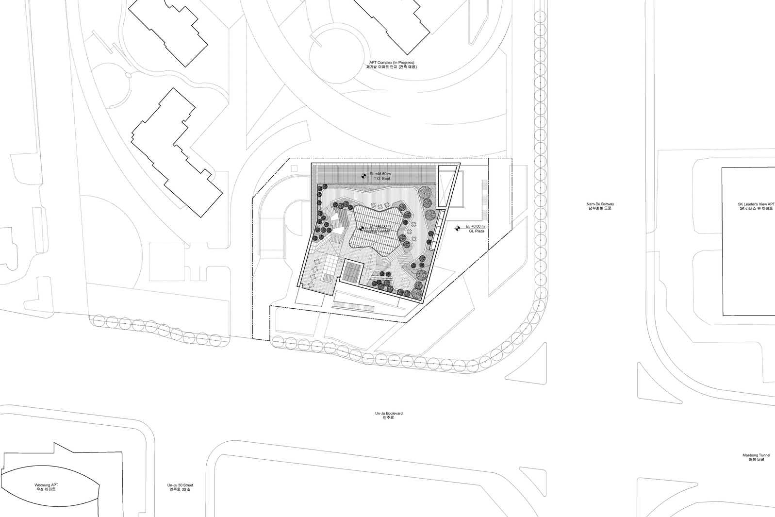
The main entrance leads to a meticulously appointed ground floor lobby. From here, visitors are drawn up and into a sumptuous garden on the second floor, an urban oasis with a reflecting pool and lush vegetation. A series of additional courtyards, terraces, and tranquil gardens are interspersed throughout the structure, culminating on the top floor, where another lobby opens into an exhilarating walkable skylight above the central atrium, which is surrounded by stepped garden terraces. Built-in benches and intimate pockets of space are incised into a lush landscape of small trees and perennials—a tranquil and magical setting for visitors. 

The building is effectively a glass sculpture, with an exterior skin entirely of glass.  A combination of opaque white, translucent, and transparent glass is used to define and articulate the building’s form, while internal wood louvers behind the clear glass facades create delicate texture and detail.